Әулиеата-Тараз жерінде XVІІ ғасырдың соңына қарай мешіт-медресе салу жұмысы жанданғанын байқаймыз. XIX ғасырда бұл істі Ресей империясы өз идеологиясы аясында жүргізіп, шіркеу мен мешіт құрылысына қаржылай көмек көрсеткені аңғарылады. Бұл ретте осы істі Түркістан генерал-губернаторлығы, кейін Уфадағы Мұсылман діни назараты (мүфтият) жүйелеп отырды. Яғни діни ғибадат орындарын тұрғызуға үкімет те, жергілікті іскер азаматтар да атсалысты.
Үшаралдағы Әбіл ишан мешіті, Бестам кентіндегі Қарақожа мешіті, Әулие атадағы Жүнісбай мешіті, Әбдіқадыр мешіті, Нәметбай мешіті – жергілікті халықтың сұранысынан өмірге келген имандылық орындары. Сондықтан бұл діни ғимараттар – қазақ халқының мәдени-рухани байлығы ретінде тарихқа енді.

Біз осы жолы Үшарал мешіті ғимаратының құрылыс мәселесін қарастырмақпыз. Ол Қаратау мен Алатау ортасындағы Талас және Аса өзендері аяғында, бүгінгі территориялық өлшеммен Жамбыл облысы Талас ауданы Үшарал ауылдық округі жерінде орналасқан.
Ауыл тұрғындары «бұл мешітті жергілікті азаматтардың қаржысына Ташкент жақтан келген Ислам есімді шебер салған» дейді. Бірден айтайық, бұл ғимарат жалғыз адамның қолынан келетін құрылыс емес. Мұны арнайы шеберлер тобы жергілікті халықты жұмылдырып салғаны талас тудырмайды.
Қолда бар дерекке қарағанда, мешіт құрылысы 1900 жылы аяқталып, пайдалануға берілген. Кейбір деректерде 1906 жылы ашылғаны жазылады. Сонда бұл ғимараттың тұрғанына – 124 (118) жыл. Құрылыстың жоспарын үйлестіру, құрылысшыларды тарту мен материалдар дайындау ісімен Ислам шебер айналысса, Үшарал, Тоғызкент аймағының имамы Әбіл ишан деген жалпы ұйымдастыру ісімен шұғылданған. Бұл туралы марқұм шығыстанушы-ғалым, дінбасы-қайраткер Әбсаттар қажы Дербісәлі «Қазақстан мешіттері мен медреселері» атты кітабында мәлімет берген («Аруна» баспасы, 2009 жыл, 158-бет).
Деректерге қарағанда, мешіт құрылысы үшін қыш (күйдірілген кірпіш) пен басқа да қажетті материалдар жергілікті топырақтан даярланған (1-сурет). Үшарал мешіті қабырғасының көлемі 200х130 және 240х130 екі түрлі күйдірілген (ақсақалдар «қышты күйдіруге шеңгел пайдаланылды» деседі) кірпіштен өрілген. Үшарал топырағы сортаң болғандықтан, ылғал мен бүлінуге төтеп беретін кірпіш жасау үшін арнайы уақ мал мен түйе сүті пайдаланылған. Мұны Ә.Дербісәлі де жазады. Міне, осындай қоспасы бар кірпішті шеңгелмен күйдіргенде құрамындағы органикалық заттар мен сүт майы ылғалға төзімділігін арттырады. Сонымен қатар кірпіштің беріктігін арттыру үшін лайға жылқының жалы мен құйрық қылы, ешкінің қылшық жүні қосылған.
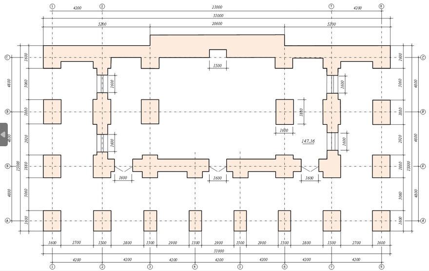
Ғимараттың жоспары төртбұрышты, сондай-ақ оларға үш жағынан жапсарлас ашық галерея төртбұрышты бағаналардағы желкендердің көмегімен шығарылған, тоғыз кіші күмбезбен жабылған. Мешіттің төбесі жалпы саны 16 (он алты) күмбезбен көмкерілген. Ғимарат көлденең сегіз координциялық және бойлық төрт координциялық өстен тұрады. Бұл өстерде жиырма сегіз баған орналасқан. Мұндай ғимаратты бағаналық сәулеттік шешім сол заманның озық архитектурасы еді. Бағаналы пішімді ғимарат сол мешіт құрылысының ұзақтығы мен беріктігіне әсер еткен. Бұл бағандардың қималары, яғни ені мен ұзындығына байланысты 1,2х1,6 м., 1,3х1,6 м. және 1,3х1,88 м. үш түрлі. Ал ғимарат бағаналарының биіктігі орта есеппен 2,4 метрге тең. Ғимараттың оңтүстік-батыс қабырғасы тұтастай кірпішпен қаланған. Оның биіктігі 4 500 метр. Бағаналар арасын қосып, үш дәлізден тұратын мешіт бөлмелері салынған, оның көлемі – 147,36 шаршы метр.
Мешіттің солтүстік-шығыс жағында мешітке кіретін үш есік орналасқан. Бұл есіктердың ені – 1,6 м, биіктігі – 2,1 м-ге тең. Ортаңғы есікке қарама-қарсы мешіттің оңтүстік-батыс жағындағы қабырғасында михраб қуысы бар. Оның ұзындығы – 1,5 м, ал ені 0,62 м-ге тең. Мешіттің солтүстік-батыс пен оңтүстік-батыс бүйір қабырғаларында еденге дейінгі екі-екіден төрт есік тәрізді терезе бар. Осы терезе ойығының өлшемі: ені – 1,5 м, ұзындығы – 2,0 м.
Ғимараттың 28 (жиырма сегіз) бағанасы мешітті он алты шаршыға бөледі. Бұл он алты шаршының үлкені көлденең 3 пен 6 координациялық өспен және бойлық Б мен С координациялық өс арасында болады. Шаршы мешіттің ішкі бөлмесін орталық дәлізді, яғни үлкен күмбездің негізін береді. Күмбез негізінің сыртқы диаметрі шамамен – 10,8 м, ал үлкен күмбездің ішкі диаметрі шамамен 9,3 м-ге тең. Күмбездің биіктігі шамамен 9,5 м Мешіттегі кішкентай күмбездердің сыртқы диаметрі шамамен 3-2,9 м, ішкі диаметрі – 2,4 м. Ал күмбездің биіктігі шамамен 2 м болды. Бұл күмбездер жиынтығы ғимараттың жабынын өте сауатты жасауға себеп болған.
Біз жоғарыдағы көрсеткіштерді негізге ала отырып, қазіргі заманауи құрылыс сызбалары ережесін пайдаланып, ескі мешіттің жоспарын әзірледік (2-сурет). Жоспарды сызудағы мақсат – бірсыпыра деректе осы ғимараттың «енін 10,2 м, ал ұзындығын 12,5 м» деп қате көрсеткен. Өкінішке қарай, бұл өлшем шындыққа сәйкес емес. Ғимараттың бас қасбеті жеті аркадан тұрса, ал бүйір қасбеттері үш аркадан тұрады (1-сурет). Бұл – ғимараттың ұзындығы екі еседен астам деген сөз.
Тағы бір жаңсақтық, көптеген деректе (интернет желісінде кезіп жүр) Үшаралдағы мешітті Абдулла ишан Саиди (1836–1914) есімімен атайды. Ашық дерек көзінен бұл кісінің Башқұртстанда Саитбаттал қазіреттің отбасында дүниеге келгенін, 9 жасында ата-анасынан айырылып, нағашы атасының тәрбиесінде өскенін, медреседе тәлім алғанын білеміз. Абдулла ишан Саиди 1853 жылы генерал В.Перовскийдің басқаруымен патшалық Ресейдің Сырдария жорығына қатысады. Әскери қызметтен соң білімін Бұхарада, Хорезмде, Ыстанбұлда жетілдіреді. Бұхарада медресе ашып, жібек өңдеумен айналысады. Шығыс елдерінің тұрмыс тіршілігі мен мәдениетін, дін ілімін жетік меңгереді. Араб, парсы тілдерінде өлең жазып, ұстаз және сөзге шешен ділмар ретінде көпшілікке танылады. Кейін Башқұрт жеріндегі туған аулында мешіт тұрғызып, 1913 жылы науқастан қайтады. Біздіңше, мәлімет аздығынан жұртшылық осы Абдулланы Үшарал мен Тоғызкент имамы болған Әбіл ишанмен шатастырған. Сондықтан Түркістан өңірінің тарихы сақталған Ташкент архивін мұқият қарауымыз қажет. Өйткені ол кезде мешіт салуға рұқсат алу мен оның сәулеттік сызбасы міндетті түрде бекітіліп тіркелген.
Біз бұл шатастырудың негізін мешіт өлшемінен байқап отырмыз. Қазақ мешітіне Башқұрт мешітінің ауданы «көшіріле» салған. Шын мәнінде, Үшарал мешітінің ауданы марқұм Ә.Дербісәлі кітабында жазылғандай, ені – 15 м, ұзындығы – 31 м. Біз осы тарихи орынға ниеттеніп барып, оны арнайы өлшеп те көрдік.
Бұдан бөлек, «мешіт ғимараты бұзылып, қайта жөнделген» деген дерек те бар. Мешіттің тек қана артқы қабырғасындағы 10-12 шаршы метр аумақ кірпішін бір имансыздар бұзып, алып кеткен. Кейін мешітті қайта жөндеу кезінде алынған кірпіш орны таспен қаланған.
Тағы айтатын жайт, Астана қаласындағы «Атамекен – Қазақстан» картасы этномемориалдық кешенінде еліміздің атақты ескі ескерткіштерінің макеттері тұр. Соның арасында Үшарал мешіті нобайы да бар. Өкінішке қарай, оның үлкен күмбезі дұрыс жасалмаған. Макеттегі күмбез Түркістандағы Қожа Ахмет Ясауи кесенесі күмбезінің сәтсіз «көшірмесі» секілді.
Үшарал мешіті – бірнеше саланың зерттеушілері (дінтану, тарих, этнография, архитектура, құрылыс, дизайн, т.б.) үшін тың тақырып. Айталық, тұрғызылғанына 100 жыл өтсе де, бұл ғимараттың қабырғаларынан жарылған сызат таппайсыз. Бұл – мешіт іргетасы өте сауатты жасалғанын аңғартады. Екінші, үлкен күмбез ғасырлық түрлі атмосфералық күштерге төтеп беруі – арнайы зерттеуді қажет етеді.
Осы сапа Үшарал мешіті – сәулет өнерінің биік үлгісі әрі мұсылмандық шығыстағы маңызды рухани ескерткіш екенін аңғартады. Олай болса, дәл бұл мұраны Талас ауданы, жалпы Жамбыл облысы әлемдік туристерге, ғалымдарға мақтанышпен көрсете алады. Сондықтан да ақылды аға буын сонау кеңес кезеңінде, дәлірек айтсақ, 1982 жылы оны республикалық маңызы бар тарих және мәдениет ескерткіштері тізіміне енгізуге мұрындық болды.
Ғасырдан астам тарихы бар мешіттің уақыт сынына, әсіресе атеизм заманының түрлі бүлдіргіш әрекетіне төтеп беруі – осы өңір жұртшылығының ата дәстүрге адалдығын, имандылықты қастер тұтқанын көрсетеді.
Рас, бала кезімізде бұл мешіттің қоршаусыз, есік-терезесіз, аса күтімсіз күйін көрген едік. Үлкендер жағы діни ғимарат кеңес өкіметінің алғашқы жылдарында қойма, кейін тіпті малқора болғанын өкінішпен айтып отыратын. Мұндай ауыр жағдай кеңестік билік қоластындағы барлық республикада өткен. Сондықтан оның күнәсі – дінсіз өкімет пен күрделі қоғамның мойнында. Біз енді барды ұқсата білуіміз керек.
Осыны ойлаған Жамбыл облысы Талас ауданы әкімдігі Үшарал, Бестам мешіттерін мәдениет ескерткіші ретінде күту мен зерттеудің жергілікті жобасын жүзеге асыруға жұмылып отыр. Әрине, бұл кешенді жұмысқа елеулі мемлекеттік қолдау қажет деп санаймыз. Мәселен, осы жақсы бастаманы Ғылым және жоғары білім министрлігі, Мәдениет және ақпарат министрлігі, облыс әкімдігі жариялайтын ғылыми, мәдени жоба аясында да орындауға болар еді. Сонда Таластағы айрықша мешіттердің тарихы түгенделіп, сәулет-құрылыс сызбасы жасалып, ұрпаққа баянды мұра болып қалар еді.
Әуез Бәйдібеков,
Л.Н.Гумилев атындағы
ЕҰУ профессоры,
техника ғылымдарының докторы