Әдебиеттерді зерттеу барысында Әмір Темірдің алғашқы ұсынған өлшемі кесененің үлкен күмбезінің диаметрін 30 гязға тең етіп алғаны анықталды. Қазіргі кездегі бұл ұзындық өлшем бірлігі бойынша 1 гяз 60,6 см-ге тең. Сондықтан осы күнгі кесененің үлкен күмбезінің диаметрі 18,18 метрге тең (1-сурет). Бұл Әмір Темірдің жоспары бойынша дінді насихаттау мақсатында Құран Кәрімнің сүрелеріне негізде жасалған. Бұған дәлел ретінде Құран Кәрімнің 30-сүресі «Рұм», яғни римдіктерді жеңу құрметіне арнаған сүрені айтуға болады.
Қазіргі кезде бұл үлкен күмбез астында қоладан жасалған Тайқазан тұр. Осы дәлізді «Қазандық залы» деп атайды. Бұл – кесененің жеті тәуелсіз орналасқан бөліктерін біріктіріп тұрған күмбез. Әмір Темірдің ғимаратты жеті бөлікке бөлу себебін Құран Кәрімнің сүрелерінен іздеп көрсек, 7-сүресі «Ағрафқа» (аудармасы «Биік тосқауылдар») барып тіреледі. Себебі бұл сүренің бірінші аятында былай деген «(Мұхаммед (с.ғ.с.) бұл саған түсірілген бір кітап, сондықтан кірбіңділік болмасын. Бұл арқылы ескертумен мүміндерге үгіт үшін». Міне, осы аят арқылы Құран Кәрімнің адам баласына Алла Тағала түсірген Киелі кітап екенін ескерткен. Сонымен қатар осы сүренің 7-аятында былай дейді: «Ол күнгі таразылау шындық, сонда кімнің таразысы (жақсылықта) ауыр тартса, міне солар құтылушылар», яғни бұл аят бойынша мұсылмандарға жақсылықты көбірек жасау керегін айта келе, 45-аятта былай дейді: «(Ұжмақтағылар мен тозақтағылардың) арасында далда бар. Және «Ағраф» делінген жоғары орында екі жақтағыларды да әлпеттерінен танитын біреулер бар. ... Бұлар әлі жәннатқа кірмеген, үміт ететіндер», яғни мұсылмандарды іс әрекеттері арқылы жәннатқа баруға шақыру. Зерттеу барысында негізгі жеті бөлікке бөлу мақсатын қарастыра отырып, мұсылмандардың жәннатқа бару үшін Раббымыз әр заманда жеті пайғамбарды жіберіп, түзу жолға салу болғанын анықтадық. Сонымен бірге 7-сүренің кесенеге негіз болу себебі Алла Тағала жерге әр кездерде жеті пайғамбар жіберіп, адамзатты әр түрлі қияметтен құтқарып отырған. Сондықтан осы жеті бөлікке негізделген Нұх, Һұд, Салих, Лұт, Шұғайып, Мұса, Мұхаммед (с.ғ.с.) пайғамбарлар себепкер болуы мүмкін.Сонымен қатар бұл сүре кесенеге келген адамдарды Ақырет азабынан қорғайды. Жеті бөлік сол кездегі құрылыста пайдаланылған бірқатар жаңашыл сәулет-құрылыс шешімдерінің бірі болған. Себебі жетеуі жеке бөлік ретінде, жалпы, ғимараттың шөгуі мен жер сілкінісі кезінде құлаудан сақтаған. Бұл – бөліктердің астыңғы жағында қазіргі заманауи салынған іргетасы жоқ, деформациялық тігіс бар ғимарат.
Қожа Ахмет Ясауи кесенесінің кіші күмбезі бұрыштардағы төрт сәулелі желкендерге сүйеніп жасалған. Осы негіздің үстіне диаметрі 10 метр (17 гязға тең) болатын цилиндр тұрғызылған. Цилиндрдің үстіне 52 қабырғалы (қырдан) тұратын күмбез салынған. Бұл күмбездің жалпы биіктігі 21 метрге (34 гяз) тең.
Сонымен диаметрі 17 гязға тең екінші күмбез Құранның «әл-Исра» сүресі, аудармасы «Түнгі сапар» деп аталады. Осы сүренің 1-аятында «Құлын (Мұхаммед (с.ғ.с.) бір түні өзіне белгілерімізді көрсету үшін Месжід Харамнан біз айналасын мүбәрак қылған Месжід Ақсаға апарған Алла, әртүрлі кемшіліктен пәк, Шексіз Ол, Естуші, Білуші (Мұхаммед с.ғ.с. бір түні Жебрейіл ғ.с. арқылы Бұраққа мінгізіліп, Месжід Харамнан Месжід Ақсаға апарылып, ол арадан да көкке шығарылып, бір демде адам баласының өлшеулі сезімінен тыс дәрежеге ие болып қайтқан «Миғраж» уақиғасы). Ал осы сүренің жетпіс тоғызыншы аятында былай дейді: «(Мұхаммед (с.ғ.с.) Түннен оянып (Құранмен) өзіңе тән нәпіл оқы. Раббыңның сені бір мақтаулы орынға жеткізуінен үміт етіледі (Бұл зор шапағат орны)». Сонымен қатар 105-аятта: «Біз Құранды шындықпен түсірдік. Ол шындық бойынша түсті. (Мұхаммед (с.ғ.с.) сені қуанту, ескерту үшін ғана жібердік».
Міне, осы өлшем кесененің барлық геометриялық өлшемдерін Құран Кәрім сүрелерімен зерттеуге жол ашты. Кесененің негізгі күмбезінің биіктігі қазіргі кезде 44 метрге тең екен, мұны сол кездегі өлшем бірлігіне айналдырғанда 72 гязға тең болады. Кейбір зерттеушілердің айтуынша, күмбез әлдеқайда биік болуы керек еді. Құран Кәрім бойынша 72-сүре «Жын» деп аталады. Бұл сүренің басында (Мұхаммед (с.ғ.с.) Меккемен Тәйіптің арасындағы Нахла деген жерде сахабалармен бірге таң намазын өтегенде, жындар тыңдаған), яғни бұл кесенеге келгендерді Алла Тағала «Жын-шайтандардың кесірінен, көз тиюден сақтайды» деген мағына шығар. Осы сүренің он алтыншы аятында «(Егер жындар мен адамдар,) ол жолда тұп-тура жүрсе, әрине, оларға мол су нәсіп етеміз», яғни он үшінші аятта «Расында осы тура жолды естіп, Оған сендік. Кім Раббына иман келтірсе, сонда ол, кемшіліктен де, зияннан да қорықпайды», осылай Әмір Темір билеуші кесенеге келгендерді Алла Тағала кемшіліктер мен жындардың кесірлерінен сақтайды деп шақырғысы келген болар деп түйеміз.
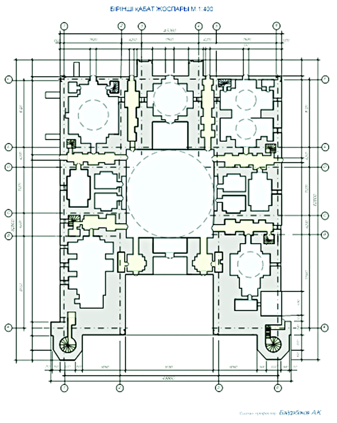
Кесененің бірінші қабат жоспарында кесенеге кіреберіс порталы (ойықшасы) көрсетілген, оның ұзындығы 20 метрге тең. Бұл Әмір Темірдің кезіндегі өлшем бойынша 33 гязға тең, яғни Құран Кәрім бойынша «Ахзап» сүресі (Біріккен күштер). Осы сүренің бірінші аятында «Әй, нәби! Аллаға тақуалық істе де, кәпірлер мен мүнафықтарға бағынба. Рас, Алла тым білуші, аса дана», яғни кесенеге кіргенде кәпірлерден қорықпай Аллаға тақуалық жаса деп мұсылмандарды кесенеге шақырады. Сүренің отыз бірінші аятында «Сендерден кім Аллаға, Пайғамбарына бой ұсынып, ізгі іс істесе, оған да екі есе сыйлық береміз. Сондай-ақ оған мол нәсібе береміз» деп адамдарды кесенеге шақырып, Аллаға құлшылық жасаса, байлықтарын екі есе көбейтуге шақырады. Ал 73-аятында осы сүрені 41 рет оқыған адамның табысы мол әрі берекетті болады дейді. Осы негізгі порталдың биіктігі – 37,5 метр, ал ескі өлшем бойынша бұл 62 гязға тең, яғни бұл Құран Кәрімнің 62-сүресі «Жұма», осы сүренің он бірінші аятында «Араздасқан адамдарға оқылса, татуласады» деген мағына береді. Бұл сүреден Әмір Темірдің адамдарды жұмада кесенеге шақыру арқылы татуластыруды мақсат еткен сияқты.
Кесененің 35-тен астам бөлмесі бар. 12 бөлмесі бірінші қабатта орналасқан. Осыған орай Құран Кәрімдегі 12-сүрені зерттеуге тура келді. Бұл сүренің аты – «Жүсіп». Сүренің басы «Ұғымын Алла біледі. Бұлар ап-айқын Құранның аяттары» деп басталса, сүренің үшінші аятында «(Мұхаммед (с.ғ.с.) саған бұл Құранды уахи етуімізбен өзіңе қиссалардың ең жақсысын баян етеміз. Негізінде сен бұдан бұрын, әрине, хабарсыз едің)» деп жамағатты Құранды оқуға шақырған. Ал төртінші аятта (Сол уақытта Жүсіп пайғамбар әкесіне: «Әкетайым! Рас мен түсімде он бір жұлдыз және күн мен айды, маған сәжде қылғанын көрдім» деді) сол заманда біздің күн жүйесінде он екі планета барын білдірген. Олардың қатарына бізге белгілі планеталар: Нептун, Юпитер, Сатурн, Уран, Марс, Шолпан, Меркурий, Жер және кейіннен ашылған ергежейлі планеталар: Церера, Хаумеа, Макемаке мен Эрида кіреді.
Ал енді Қожа Ахмет Ясауи кесенесінің, артқы ені 45,360 метр болса, алдынан қарағандағы ені 48,860 метрді құрайды. Ғимараттың жалпы ұзындығы 62,600 метр төртбұрыштан тұрады. Бұл геометриялық өлшемдерді 0,606 өлшемге көбейтсек, жалпы ені шамамен 29 гязға, ал ұзындығы 37 гязға тең. Бұл Құран Кәрімнің 27-сүресі «ән-Нәмл»-ге сәйкес келеді. Аудармасы «Құмырсқалар» деп аталады. Осы сүренің 93-аятында былай дейді: «Үнемі оқып жүрген жанды Алла Тағала түрлі бәлелер мен сиқырдан қорғайды». Ал Құран Кәрімнің 29-сүресі «әл-Анкәбут» (Өрмекші) деп аталады. Алпыс тоғызыншы аятында: «Ұмытшақтықты кетіру үшін осы сүрені жазып, суға салып ішу керек».
Ғимараттың ұзындығы сәйкес келетін Құран Кәрімнің 37-сүресі «Саффат» (Сапқа тізілгендер). Осы сүренің 182-аятында былай деген: «Барлық мақтау бүкіл әлемнің Раббы, Аллаға лайық». Әмір Темір осы аятты жеті рет оқыған адамның ризығы артатынын біліп, кесенеге шақырған секілді.
Ғимараттың бас қасбеті оңтүстік-шығысқа, ал бүйір қасбеттері оңтүстік батыс пен солтүстік-шығысқа қарайтын етіп салынған. Бас қасбет негізгі портал мен екі мұнарадан, кіреберіс үш есіктен және үлкен аркадан тұрады. Бұл айтылғандар заманауи сызылған бірінші қабат жоспарында көрсетілген. Жоспарды сызуға бірнеше себептер болды. Біріншіден, осындай киелі орынның осы күнге дейін заманауи жоспарының болмауы, екіншіден, бұл ғимарат XIV ғасырда салынса да қазіргі заман талабына сай жасалған.
Бас порталдың екі жағындағы ғимараттың екі үлкен мұнарасы бар. Бұл мұнараның астыңғы жағы сегіз жақты тік призмадан тұрады. Тік призманың жақтарының ені 3,0 метр (Құран Кәрім бойынша 5-сүре «әл-Мәида» деп аталады, мағынасы «Асқа толы дастарқан». 40 рет оқыған жанға Алла Тағала мол ризық, несібе нәсіп етеді), ал мұнараның биіктігі ғимараттың қабырға биіктігімен тең. Мұнараның қалған биіктігі дөңгелек тік цилиндрден тұрады. Сонымен Қожа Ахмет Ясауи кесенесінің бас порталға симметрия болып орналасқан екі мұнараның жалпы биіктігі шамамен 30,56 метрге (50-ші «Қаф» сүресі, әр жұма кешінде 3 рет оқыған жанның жанары нұрланады) тең. Мұнараның төменгі сегіз жақты тік призманың бес жағы ғана көрініп тұр, өкінішке қарай, мұнараның бұл бөліктері безендірілмей қалған.
Бас порталдың ұзындығы 18,18 метр (яғни 30-сүре), ал ені шамамен 12,70 метрге тең (21-сүресі «әл-Әнбия» «Пайғамбарлар» деп аталады. Ұрпағынан тақуа жандардың шығуын қалаған адам осы сүрені оқығаны абзал) және биіктігі 43,43 метр (72-сүресі «әл-Жин» яки «Жын»). Бас порталдың ішінде кіреберіс порталы бар. Оның ұзындығы 7,30 (12-сүресі «Жүсіп». Бұл сүрені үнемі оқып жүрген адамның айналасындағы адамдармен қарым-қатынасы жақсарады), ені 3,60 (6-сүре «әл-Әнам» аудармасы «Шаруа малдары». Бұл сүрені 41 рет оқыған адамның тоқтап тұрған ісі алға басады), ал биіктігі 13,65 метрге (22-сүре «әл-Хаж», аудармасы «Қажылық». Үнемі бұл сүрені оқып жүрген жанның өлімі жеңіл болады) тең.
Оң жақтағы бүйір қасбеті солтүстік шығысқа қарай бағытталған. Бұл бүйір қасбет төртбұрыштан тұрады. Қасбетте бір кіреберіс есік пен өлшемі 5,68х3,85 метр, яғни 9х6, ал биіктігі 11,00 метрге (Құран Кәрімнің 18-сүресі «әл-Кәһф» , аудармасы «Үңгір» деп аталады. Жұма күні бір рет оқыса, келесі жұмаға дейін барлық бәледен және ақырет фитнасынан аман болады) тең портал бар.

Бұдан бөлек, ғимараттың іргетасының биіктігі 2,21 метрге тең (Құран Кәрімнің 3-сүресі «Әли Имран», аудармасы «Имран отбасы». Бұл сүрені қарасақ, Алла ол пендесіне күтпеген жерден байлық нәсіп етеді) биіктікте орналасқан геометриялық фигуралардан тұратын іргетас мозайкасы мен 2,50 метр (бұл 4-сүре, атауы «ан-Ниса», «Әйелдер» деген мағынаны береді. Отбасында бірлік пен татулықты арттырады) араб қаріптерінен жазылған басқұр бар. Қасбеттің қабырғасы қара көк кірпіштен өрілген екі ромб тәрізді сегіз қырлы геометриялық элементтің горизонталь және вертикаль екі қатар пазл тәрізді мозайкадан тұрады. Осындай қара көк 45 төртбұрышты кішірек кірпіш бар. Осы геометриялық элементтердің ішіне ашық көк кірпіштен куфа қаріпімен өріліп жазылған «Алла», «Мұхаммед», «О, Жарылқаушы», «Билік Аллада», «Алла – менің әміршім» деген сөздер бар.
Ғимараттың сол жақ бүйір қасбеті оңтүстік-батысқа қарай орналасқан. Бұл оң жақтағы бүйір қасбет сияқты төрт бұрыштан тұрады. Қасбеттің іргетас пен басқұры және кіреберіс есігі бар. Қабырғада қара көк кірпіштен өрілген көлбеу орналасқан он екі қырлы айқыш (бүгінгі қосу таңбасы) тәріздес геометриялық элементтен екі қатарлы болып келеді. Егер бұл айқыштың контурасын сызық ретінде қарасақ, онда крест тәрізді көпбұрыштың қырлары свастиканы береді. Одан бөлек, крест тәріздес көпбұрыштың ішінде қара көк кірпішпен қанаты бар свастика өрілген. Ал осы геометриялық элементінің ішіне ашық көк кірпіштен куфа қаріпімен өріліп, «Алла», «Мұхаммед», «О, Жарылқаушы», «Билік Аллада», «Алла – менің әміршім» деген сөздер жазылған.
Ғимараттың артқы жағынан қараған аулалық қасбет солтүстік-батысқа қарап салынған. Аулалық қасбеттің ортасында ғимараттан шығып тұрған портал бар. Порталдың ұзындығы 6,50 метр (10-сүресі «Жүніс», «Жүніс пайғамбар». 21 рет оқитын болса, Алла Тағала дұшпандардың жамандығынан сақтайды), ені 3,23 метр (5-сүресі «әл-Мәида», «Асқа толы дастарқан». 40 рет оқыған жанға Алла Тағала мол ризық, несібе нәсіп етеді), ал биіктігі 10,00 метрге (16-сүресі «ан-Нахл», «Аралар». Бұл сүрені 100 рет оқыған адам ізгі мақсаттарына қол жеткізеді) тең және бес есіктен тұрады.
Аулалық қасбет екі жағында көп бұрышты геометриялық элементтерден жасалған іргетас пен араб қаріпімен жазылған басқұрдан тұрады. Шығып тұрған портал Аулалық қасбеттің қабырғасын сол жақ пен оң жаққа бөліп тұр. Осы порталдың ішкі жағындағы есіктің екі жағында орналасқан он екі өзара бүйірлері тең жиырма төртбұрыштан тұратын геометриялық фигура бар. Артқы порталдың іргетасы ғимараттың үш жағындағы іргетастардың мозайкасынан ерекше. Порталдың кіреберіс есігінің екі жағында он екі сегіз бұрыштан тұратын геометриялық фигура бар. Ал бүйір қабырғаларында симметриялы орналасқан жиырма сегіз бұрыштың іші оюлармен безендірілген геометриялық фигура бар. Құран Кәрімде 8-сүрені «әл-Әнфал» деп атайды, қазақшаға аударғанда «Соғыс олжалары» деген мағына береді. Осы сүренің 2-аятында былай делінген: «Сөзсіз мүміндер, Алла еске алынса, жүректері қобалжиды да, оларға Алланың аяттары оқылса, сенімдері артылып, Раббыларына тәуекел қылады».
Іргетастағы мозайканың геометриялық сызбаларын қарастыратын болса, алдымен тең бүйірлі төртбұрышты алған. Осы төртбұрыштың қарама-қарсы бұрыштарын өзара қосып, төртбұрыштың ортасы анықталған. Бұл төртбұрыштың ортасы арқылы төрт доға жүргізіп, төртбұрыштың жақтарын үшке бөлген. Ал осы тең бүйірлі төрт бұрыштың ішін тең сегіз бұрышқа және төрт алты бұрышқа, он екі төрт бұрышқа бөлген. Бұл алты бұрыштардың төрт бұрышының арасындағы бұрыштық шама 720 градусқа тең болады. Осы алты бұрыштың бір бөлігін екіге бөліп, 720 градус алған, яғни Құран Кәрімнің 72-сүресі (Жын) болады.
Тапқан алтыбұрыштарды жинап, өзара тең қабырғалы сегіз бұрышты – геометриялық фигураны алған. Бір қызығы, сегізбұрыштың төрт бұрышы 720 градус бұрыштардан тұрса, тұмарға ұқсайтын төрт бұрыштардың қарама бұрышты екіге бөлсек 720 градус болады.

Сонымен Қожа Ахмет Ясауи кесенесін салған ұсталар ғимараттың көзге түсетін өлшемдерді Құран Кәрімнің сүрелері мен геометриялық фигураларға негізделіп салғаны анықталды. Ғимараттың халқымыздың киіз үй сияқты оңтүстік-шығысқа қаратып салу да керемет байланыс екендігін көрсетеді. Бас қасбеттегі мұнаралардың жартысы тік сегіз жақты призма болса, қалған екінші бөлігі тік дөңгелек цилиндр. Ал бүйір қабырғаларында сегізбұрыштар мен он екі бұрыштары бар. Бұл геометриялық фигуралардың ішіне Құран Кәрімнен сүрелер жазылған. Геометриялық фигуралды салуда өте дәлдікпен кірпіштерді көлбеу және тік өру арқасында салған.
Кесененің аулалық қасбеті геометриялық фигуралардан, яғни тең төртбұрыштар мен алтыбұрыштардан және сегізбұрыштар, он екі бұрыштардан тұрады. Порталдың іргетас мозайкасы геометриядағы шеңберлерді тең бөлу тақырыбына сәйкес келеді. Ғимараттың негізгі бөлігі іргетаста геометриялық фигураларды салу жолдары көп. Бұдан кесенені салған ұсталардың геометрияның заңдылықтарын жетік білуі және геометрия ғылымының құдіретін Құран Кәрім сүрелерімен байланыстырғаны анық көрінеді. Өкінішке қарай, кесененің құрылысы 1405 жылы тоқтап қалады, себебі Әмір Темір Қытайға жорық жасар алдында Отырар қаласында қайтыс болады.
Кезінде Әмір Темір осы кесенеге қатысты көрегендікпен өсиет жазып қалдырыпты. Онда: «Ешқашан да, қандай жағдайда да сатуға, жекеменшік секілді ұрпақтан-ұрпаққа уақытша немесе түбегейлі біреуге беруге болмайды» деп қатты ескертілген. Сонымен қатар ғимараттың кіреберіс есігінің ішкі маңдайшасындағы: «Бұл әулие мекен Алла Тағаланың рахымы жауған падиша Әмір Темір көрегеннің жарлығымен орнатылды. Алла Тағала оның әмірінің ғасырлар жасауына нәсіп етсін!» деген жазу да көп сырды аңғартады.
Әуез БАЙДАБЕКОВ,
Л.Н.Гумилев атындағы Еуразия ұлттық университетiнің кафедра меңгерушісі, техника ғылымдарының докторы, профессорф